Подробно о вакуумно-выпарных установках

Что такое вакуумно-выпарная установка и как она работает

Вакуумно-выпарная установка (ВВУ) – это технологическое оборудование нового поколения, которое используется для сгущения растворов, суспензий и эмульсий путем удаления влаги с помощью процессов вакуумирования, теплопередачи и испарения. Это инновационное оборудование позволяет концентрировать продукты при низких температурах (40-70°С), сохраняя при этом все ценные свойства исходного материала.

Все вакуумно-выпарные установки работают по единому физическому принципу: обрабатываемая жидкость подается в установку и подогревается до температуры кипения при отрицательном давлении (вакууме), а образующийся в результате пар отводится из установки и конденсируется на холодной поверхности теплообменника-конденсатора. Это позволяет удалить излишки влаги из обрабатываемой жидкости и преобразовать ее в густой, пастообразный или вязкий продукт. Удаленная влага при необходимости может собираться и использоваться повторно в технологическом процессе.

Чтобы узнать о коммерческих вакуумно-выпарных установках больше, получите бесплатную консультацию у нашего специалиста. 

Выпарная установка в производственном цехе

Рисунок - Выпарная установка


Принцип вакуумного выпаривания

Вакуумное выпаривание – это широко используемый метод концентрирования, который представляет собой удаление воды из жидкого сырья путем его кипячения в испарителе вакуумно-выпарной установки с одновременным отводом пара. Ключевым преимуществом этого метода является возможность работать при низких температурах, что критически важно для термочувствительных продуктов пищевой, косметической, фармацевтической и химической промышленности.

Если сырье содержит растворенные сухие вещества, полученный крепкий раствор может насыщаться до образования кристаллов. Как один из наиболее энергоемких процессов, применяемых в промышленности, выпаривание должно рассматриваться с точки зрения экономичного использования энергии, а также эффективности процесса. Современные ВВУ позволяют достичь оптимального баланса между производительностью и энергопотреблением.

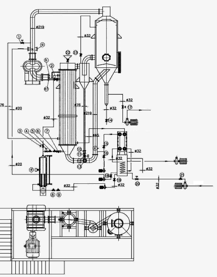
Схема выпарной установки в двух видах

Рисунок - Схема выпарной установки


Отличие вакуумного выпаривания от сушки

Важно понимать ключевое различие между этими процессами. Вакуумное выпаривание отличается от сушки тем, что в результате удаления влаги из сырья получается высококачественная концентрированная жидкость, а не твердое вещество.


Цены на вакуумно-выпарные установки 2025

Модель

Пр-ть, л/ч

Тип

испарителя

Цена,

от,

руб

Срок изготовления, дн

Действие

ВВУ

5

Чанный с мешалкой или без мешалки

1080000

60

Заказать

ВВУ

10

Чанный с мешалкой или без мешалки

договорная

60

Заказать

ВВУ

25

Чанный с мешалкой или без мешалки

2370000

60

Заказать

ВВУ

50

Чанный с мешалкой или без мешалки/ циркуляция/ падающая пленка

3110000

90

Заказать

ВВУ

75

Чанный с мешалкой или без мешалки/ циркуляция/ падающая пленка

договорная

90

Заказать

ВВУ

150

Чанный с мешалкой или без мешалки/ циркуляция/ падающая пленка

договорная

120

Заказать

ВВУ

250

Чанный с мешалкой или без мешалки/ циркуляция/ падающая пленка

договорная

150

Заказать

ВВУ

300

Чанный с мешалкой или без мешалки/ циркуляция/ падающая пленка

договорная

150

Заказать

ВВУ

500

Чанный с мешалкой или без мешалки/ циркуляция/ падающая пленка/многокорпусная

договорная

150

Заказать

ВВУ

1000

Циркуляция/падающая пленка/многокорпусная

договорная

150

Заказать

ВВУ

2000

Циркуляция/падающая пленка/многокорпусная

договорная

150

Заказать

ВВУ

4000

Циркуляция/падающая пленка/многокорпусная

договорная

150

Заказать

ВВУ

8000

Циркуляция/падающая пленка/многокорпусная

договорная

150

Заказать

⚠️ Важно: Цены указаны для стандартных конфигураций из нержавеющей стали AISI 304. Для специальных материалов, пленочных испарителей или индивидуальных решений стоимость рассчитывается отдельно. Рассчитайте стоимость выпарной установки вместе с нашим специалистом. 

 

Преимущества вакуумного выпаривания

Вакуумно-выпарные установки предлагают множество значительных преимуществ, которые делают их идеальным выбором для современного производства:

  • Работа при низких температурах (40-70°С)
  • Благодаря созданию вакуума, жидкость закипает при гораздо более низких температурах, чем при атмосферном давлении. Это позволяет сохранять термолабильные вещества – витамины, микроэлементы, вкусовые и ароматические компоненты. Традиционные методы выпаривания при температуре 100°С приводят к разложению ценных веществ, в то время как вакуумное выпаривание предотвращает эти потери.
  • Вакуумное выпаривание использует принцип рекуперации тепла – вторичный пар, образующийся при испарении, может быть повторно использован для нагрева следующего эффекта. Это существенно снижает потребление энергии по сравнению с прямым выпариванием. Более подробно о процессах вакуумного выпаривания в пищевой промышленности читайте в типовом руководстве. 
  • Повышение эффективности производства
  • Быстрое удаление влаги позволяет сократить производственный цикл с недель до часов. Например, сгущение молока, которое при атмосферном давлении занимает 4-6 часов, в вакуумной установке происходит за 1-2 часа.
  • Улучшение качества готовой продукции
  • Сохранение питательных веществ, сохранение вкусовых качеств, микробиологическая стабильность, увеличение срока хранения.

 

Часто задаваемые вопросы (FAQ)

❓ Сколько стоит вакуумно-выпарная установка?

Стоимость вакуумно-выпарных установок варьируется от 1 млн. руб до 40 000 000 руб и зависит от производительности, типа испарителя, материала конструкции, уровня автоматизации и дополнительных опций. Для точной калькуляции стоимости свяжитесь с нами.

❓ Какая производительность вакуумно-выпарных установок?

Производительность наших установок варьируется от 5 до 8000 л/ч по испаренной влаге в зависимости от типа и размера. Детали описания вакуумно-выпарных установок найдутся в типовом руководстве по эксплуатации вакуумно-выпарных установок. 

❓ Чем отличается ВВА от ВВУ?

ВВА (аппарат) - это только испаритель без конденсатора, максимальная производительность до 75 л/ч. ВВУ (установка) включает испаритель, конденсатор и вакуумный насос, может работать с производительностью от 75 л/ч и выше.

❓ Какой срок изготовления?

Стандартные модели - 60 дней, модели средней серии - 90 дней, крупные установки - 120 дней, индивидуальные проекты - 150 дней.

❓ Какая гарантия на оборудование?

Заводская гарантия - 12 месяцев с момента поставки. Гарантийное обслуживание включает бесплатное устранение заводских дефектов. Расширенная гарантия возможна за дополнительную плату.


Где купить вакуумно-выпарную установку: контакты и условия 

Режим работы: Пн-Пт 08:00-17:00, Сб 10:00-14:00

Адрес производства: 656000, Россия, г. Барнаул, Алтайский край

Телефон: +7 (906) 968-1922

Email: sales@sushilka22.ru

WhatsApp: +7 (906) 968-1922

Сайт: https://sushilka22.ru


Способы оплаты

Банковский перевод для юридических лиц (с НДС, также есть ИП без НДС)

Оплата по счету (счет-фактура)

Лизинг через партнерские лизинговые компании (24-60 месяцев)


Почему выбирают Sushilka22

✅10+ лет опыта в производстве вакуумно-выпарного оборудования

✅Более 100 реализованных проектов в России и СНГ

✅Собственное производство в Барнауле (контроль качества)

✅Гарантия 12 месяцев на все оборудование

✅Бесплатное обучение персонала на месте

✅24/7 техническая поддержка после продажи

✅Декларация соответствия ТР ТС

✅Лояльные цены без посредников

✅Индивидуальный подход к каждому проекту

Закажите подбор оборудования!


Заключение

Вакуумно-выпарные установки – это современное, надежное оборудование, которое позволяет достичь новых высот в производстве пищевых, химических, фармацевтических и других продуктов. Выбрав правильное оборудование и получив квалифицированную поддержку, вы сможете:

✅ Повысить производительность на 30-50%

✅ Сократить энергопотребление на 30-40%

✅ Улучшить качество продукции и увеличить цену реализации на 5-15%

✅ Окупить инвестицию за 1-3 года

✅ Расширить ассортимент выпускаемых товаров

 

Sushilka22 выручает своих клиентов более 10 лет, помогая предприятиям России и СНГ находить оптимальные решения в области вакуумного выпаривания. Мы гордимся тем, что более 100 наших клиентов получили существенную выгоду от внедрения нашего оборудования.

Не откладывайте принятие решения – свяжитесь с нами прямо сейчас и запросите коммерческое предложение!

+7 (906) 968-1922 |sales@sushilka22.ru |https://sushilka22.ru

Удалить товар

Вы точно хотите удалить выбранный товар? Отменить данное действие будет невозможно.